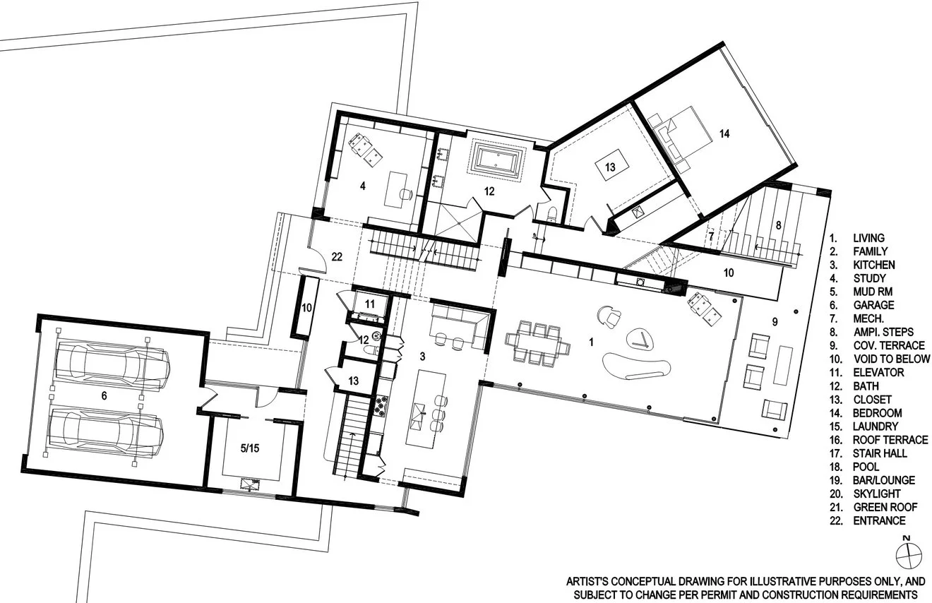
House overlooking a park Robert A. Tretsch III, AIA - Design ArchitectHarrison Design - Architect of record View fullsize View fullsize View fullsize View fullsize View fullsize View fullsize View fullsize View fullsize View fullsize View fullsize View fullsize