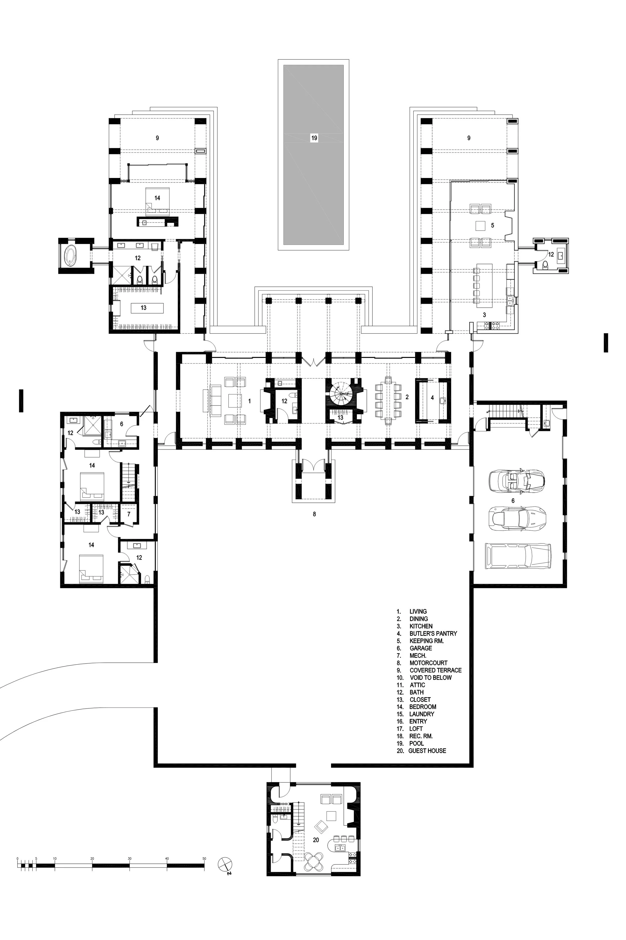
Valley House Robert A. Tretsch III, AIA - Design Architect View fullsize View fullsize View fullsize View fullsize View fullsize View fullsize View fullsize View fullsize View fullsize View fullsize View fullsize View fullsize